お役立ち情報 Infomations
お役立ち情報
2024.01.10
松本お知らせ・イベント家づくりの豆知識
4人家族だとどれくらい?家の面積などついて解説します!
家を新築しようと考えた時にまずどれくらいの部屋が必要で、どれほどの坪数になるのかが気になるという方もいらっしゃると思います。
そもそも「坪」という単位自体なじみがない、という方も多いのではないでしょうか。
新築住宅で無駄に広くして建築費用を余分にかけたくない、逆に広さや部屋数が足りずに狭い生活をしたくないとお考えの方に、一般的な新築住宅の面積やどのような家が暮らしやすいのかを解説していきます。
目次
1.土地や建物で用いられる「坪」とは?
2.一般的な家族数に応じた住宅の面積とは?
・最低居住面積水準
・誘導居住面積水準
3.収納スペースにはどのような形があるの?
・ウォークインシューズクローク
・ファミリークローク(ファミリークローゼット)
・パントリー
・階段下収納
・押入
・クローゼット
・ウォークインクローゼット
4.4人家族を想定した暮らしやすい家の実例
5.まとめ
1.土地や建物で用いられる「坪」とは?

おそらく家を建てようとするとき以外はあまり耳にすることがない「坪」という単位。
これはどういうものでしょう。
坪とは土地の面積や部屋の広さを測る際の単位となります。
日本の建物は「尺(しゃく)」という寸法を使い長さを測っています。1尺=30.3㎝で6尺になると1間(けん)という言い方になります。
この1間(6尺)×1間(6尺)が「一坪」という単位になります。
ちなみに畳のサイズでイメージしやすい1畳(帖)は6尺×3尺ですので、2畳=1坪とも言えます。
厳密には端数が出るのでややこしいのですが、一坪を平方メートルに直すと3.3058㎡ということができますね。
一般的な家族数に応じた住宅の面積とは?

それでは一般的な住宅の面積はどのくらいを目安にすればよいのでしょうか。
もちろんご家族構成や二世帯住宅、各ご家庭の条件等によって変わってきます。
実は国土交通省の資料の中に、住生活基本計画(全国計画)における誘導居住面積水準及び最低居住面積水準というものがあります。
⇒ 国土交通白書 「住生活基本計画(全国計画)における誘導居住面積水準及び最低居住面積水準」
まずはそちらをご紹介させていただきます。
・最低居住面積水準とは
最低居住面積水準は、世帯人数に応じて、健康で文化的な住生活を営む基礎として必要不可欠な住宅の面積に関する水準です。
- 単身者 25㎡
- 2人以上の世帯 10㎡×世帯人数+10㎡
以上のような記載があります。
つまり、4人家族を想定した場合10㎡×4+10㎡となり、50㎡が最低居住面積水準となります。
50㎡とは坪数で換算すると約15.12坪となります。
正直かなり狭く、本当に最小限です。
例えばLDKを広くしたい、20畳くらいほしいという話になったとすると、LDKだけで10坪の面積が必要となります。
つまり、玄関・浴室・脱衣室・トイレ・寝室・子供部屋・収納を残りの5坪ほどで納めることになってしまいますので、これはさすがに現実的ではありませんね。
特にこの長野県松本市など、東京都内などに比べて土地の価格が安い地域では無理に最低限の面積にする必要はないと考えます。
・誘導居住面積水準とは
誘導居住面積水準は、世帯人数に応じて、豊かな住生活の実現の前提として多様なライフスタイルに対応するために必要と考えられる住宅の面積に関する水準であり、都市の郊外及び都市部以外の一般地域における戸建て住宅居住を想定した都市居住型誘導居住面積水準からなる。との記載があります。
分かりにくい書き方だと思いますので要約すると、暮らしやすさやライフスタイルに合わせた生活をするならこのくらいの面積はあったほうがいい、という面積になります。
東京都内などの都市部を想定した都市居住型誘導居住面積水準と私たちが暮らす松本市や安曇野市なども当てはまる一般型誘導居住面積水準に分かれています。

- 一般型誘導居住面積水準
・単身者 55㎡
・2人以上の世帯 25㎡×世帯人数+25㎡
- 都市居住型誘導居住面積水準
・単身者 40㎡
・2人以上の世帯 20㎡×世帯人数+15㎡
例えば、4人家族を想定した一般型誘導居住面積水準に当てはめると、25㎡×4+25㎡となり、125㎡となります。
125㎡を坪に換算すると約37.81坪となりますので、自分好みのライフスタイルや生活しやすい収納スペースなどを確保することを考え、これくらいの面積を参考にするとよいと思います。
もちろん、コストとのバランスを考えて面積を少し減らしても十分プランニングは可能ですので、気になる方はご相談ください。
3.収納スペースにはどのような形があるの?

それでは暮らしやすいプランニングで考えるべき収納スペースはどのような形があるのでしょうか。特に最近はリビングや個室などのスペースをスッキリとさせたいといったご要望も多いため、収納スペースの取り方はとても重要になります。
ご要望の多い収納スペースとその用途を解説していきます。
・シューズクローク
シューズクロークとは玄関周辺にて使うもの収納するスペースです。土間収納やシューズインクローゼットと言うこともあります。 設計次第では玄関に隣接していて靴を履いたまま入ることができます。
主な用途としてはベビーカーや子供のおもちゃなど外で使用する道具をしまう他、ブーツなど下駄箱に入れづらいものや、傘にコート類など外で使用するものを効率的に収納するための空間になります。
・ファミリークローク(ファミリークローゼット)
一般的に衣類は各個人の部屋のクローゼットなどに収納しますが、ファミリークロークは家族皆で共用できる収納スペースです。
各部屋に収納を設置するよりも効率的にスペースを確保することがあります。
当然収納のしやすさだけでなく、必要な時に使いやすい動線を意識して配置する必要があります。
缶詰や麺類などの保存食品の収納、ホットプレートなど食器棚にしまうことができない調理器具やまとめたごみ類などを一時的に保管する際に便利な空間になります。
・パントリー
パントリーとはいわゆる食品庫、つまり食品や食器を収納するスペースです。
必然的にキッチンの周辺に配置します。
例えばホットプレートなど食器棚に入りきらないものや、缶詰やカップラーメンなどの保存食、捨てる予定のゴミ類などの一時的な保管などに便利な空間です。
・階段下収納
2階建ての階段下の空間を活用するために、壁や扉などで仕切った収納スペースです。 階段の段差を活かした引出しを設けて収納として使用する方法や、階段下全体を壁で囲って扉を付けるなど形は様々です。
一般的には掃除機や日用品のストックなどを収納されることが多いです。
デザイン重視のスケルトン階段などの場合は収納スペースとしては使えないので注意が必要です。
・押入
押入とは和室で寝具・衣類・道具などを収納するための空間です。
近年での新築住宅の設計では和室そのものがないケースも多いため、布団などの収納個所はプランニングの段階できちんと考えておく必要があります。
・クローゼット
クローゼットとは衣類や生活雑貨を収納するための空間です。寝室や子供部屋に設置することが多く、それぞれの洋服をハンガーにかけて収納します。
ファミリークロークを採用する場合も増えましたが、個室の収納スペースの必要性も考えながらプランや広さを検討することが大切です。
・ウォークインクローゼット
ウォークインクローゼットとは、人が中に入って歩くスペースがあるクローゼットのことです。
一般的な広さは2~4畳ほどで、ハンガーパイプや棚が備え付けられており、衣類だけでなく雑貨や布団などを効率的に収納することができます。
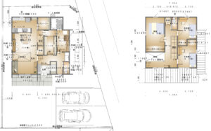
4.4人家族を想定した暮らしやすい家の実例
それでは居室に収納スペースを加えて、当社にてご相談をいただいた4人家族が暮らしやすいプランの一例を紹介していきたいと思います。

まずは玄関スペースにほどのシューズクローク。
濡れた雨具やコートなどをそのまま干せるようにハンガーパイプと靴やなどを収納できるように可動棚を設置しました。
LDKの広さは約18畳でリビング階段を採用していたため階段下収納はリビングから使用でき、日用品などを収納できます。
キッチン横には2畳ほどのパントリーを配置。
食品や予備の食器などを収納できる可動棚と冷凍庫の設置を想定しています。
脱衣室は3畳ほどで広めにとり洗濯物を干し、そのまま畳んでしまえるランドリールームでもあり、その隣にはファミリークロークも配置して「使う・洗う・収納する」を効率的にできるように配置しました。
これらの収納スペースに加えて寝室・子供部屋にはクローゼットもあり、共通で使う収納も個別で使う収納もともに充実していて、たくさんしまえるだけでなく今後のライフスタイル変化などにも対応できるだけのプランになったと思います。
ちなみにこちらのお宅で、約36坪の3LDKの間取りとなりました。
国土交通省の誘導居住面積水準と1坪違いでしたので、概ね記述通りの結果となりました。
5.まとめ

新築住宅を建てた際の面積の目安と、快適な生活をするための部屋数や収納スペースについて解説させていただきました。
今回のように家族数と快適な面積がおおよそ把握できていると、どれほどの住宅規模になるのかイメージしやすいので参考になるかと思います。
しかし、あくまで目安であって最も大切なことは実際にそこに住まう方の生活に合っているかどうかです。
家族ごとにライフスタイルや使い方は異なり、全く同じ生活をしている家庭は一つとしてないでしょう。趣味・収納の仕方・生活動線など様々な要素を踏まえたうえでプランニングを行うことが後悔しない、本当に満足できる家づくりにつながります。
優プランでは寒さが厳しく、夏も厚い松本市や安曇野市の気候に合った高気密・高断熱・高品質な注文住宅を、土地の状況に合わせて一からプランニングいたします。
平屋・2階建て、二世帯住宅など、あらゆるご要望にお応えします。
建築業者から見た土地のアドバイスに加え、ファイナンシャルプランナーとしての住宅ローンのご相談も同時に受け付けておりますので、まずはご相談ください。
この記事を書いた人
児玉 忠(注文住宅ハウスアドバイザー/ファイナンシャルプランナー)
中学生と小学生の2児の父で45歳、新卒時から23年間にわたり注文住宅のハウスアドバイザー一筋で、100棟以上の新築住宅のお客様をお手伝いしている。
ファイナンシャルプランナーでもあるため、住宅ローンの資金計画などを含めた総合的な提案を行っている。
お問い合わせ・ご相談 Contact
家づくりに関するお問い合わせはこちらから。
私たちの専門スタッフが丁寧に対応し理想の住まいへの第一歩をお手伝いいたします。
松本 office
〒390-1701 長野県松本市梓川倭574-2
山梨 office
〒400-0043 山梨県甲府市国母2-3-1
